Sediment: A Vertical Archive

Year: 2024

Location: Convoys Wharf, London

Context: MSc Architecture, TU Delft

Role: Individual project

Course / Studio: Architectural Design Crossovers Studio

Focus: Vertical circulation, Digital archive, Spatial layering

The project began with the idea of sedimentation, the slow accumulation of material over time. Just as geological sediment records change, urban sites carry traces of social, historical and spatial transformations.

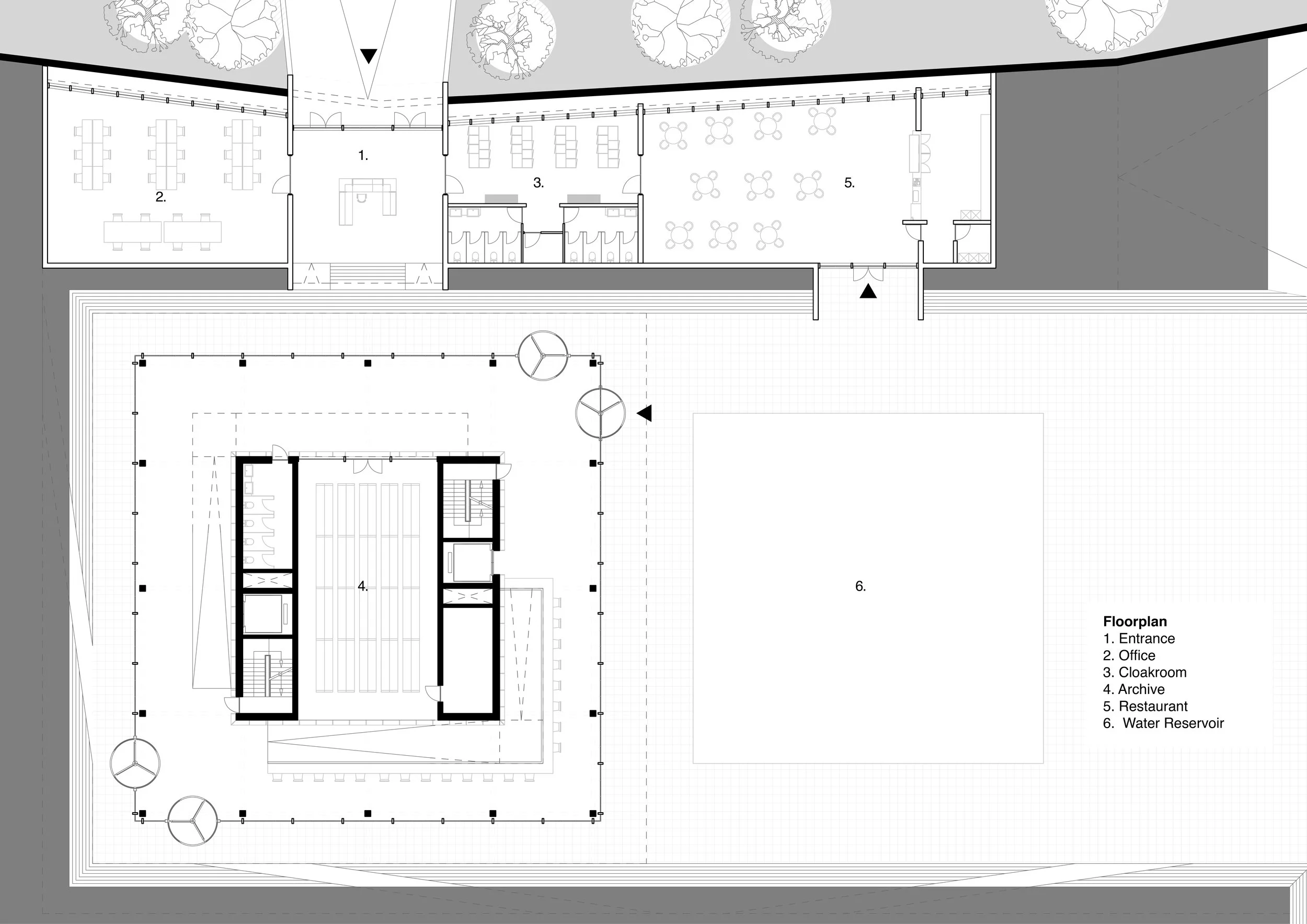
Located at Convoys Wharf in Deptford, the design explores how architecture can make this accumulation tangible. Rather than conceiving the archive as a static repository, the building organises time vertically. A central core functions as a digital archive, around which a spiralling ramp guides visitors through successive layers of exhibition, reading spaces and public programs.

The project translates horizontal layers into a vertical spatial sequence. What is normally buried in the ground becomes spatially accessible. The translucent façade reinforces this idea of partial visibility. The archive is never fully revealed, but remains layered and evolving.

Sediment proposes architecture as an accumulation of time made spatial.

Design Approach

The design originated from an observation of the wall surrounding Convoys Wharf. The wall functions as a physical and psychological boundary, separating the site from its surroundings. Yet, during the site visit, it revealed a more complex condition. The wall was not only defensive; it also created shelter. Residents lived directly against it. Small organisms inhabited its crevices. What appeared as a barrier also acted as a form of protection.

This ambiguity became the conceptual starting point of the design. Rather than opposing the wall, the project builds in relation to it. The building does not erase the condition of separation but transforms it into a spatial sequence.

At the centre of the building lies a vertical archive. Instead of storing history in a hidden basement, the archive becomes the organising core around which public space unfolds. A spiralling ramp moves along this core, guiding visitors through successive layers of exhibition, reading spaces and gathering areas.

The project translates the horizontal layering of the site into a vertical organisation. Geological sediment becomes architectural structure. What is normally buried becomes accessible. The archive is no longer a static container of information, but a spatial accumulation of time.

Previous
Previous

Shaping Spaces (Architectural History Thesis)