Networks of Care

Year: 2024-2025

Location: Tarwewijk, Rotterdam

Context: MSc Architecture, TU Delft

Role: Individual project

Course / Studio: Graduation Studio - Designing for Health and Care

Focus: Informal Care, Networks, Housing & Community Architecture

Networks of Care is my graduation project, developed over the course of one year as part of the MSc Architecture programme at TU Delft. The project combines architectural design with an extensive research process, including fieldwork, interviews, and spatial analysis in the Tarwewijk in Rotterdam.

It explores how informal care practices are embedded in everyday urban life, and how architecture can support care networks beyond formal institutions through spatial interventions that encourage collective use and encounter.

The project is accompanied by a research booklet (available here) and a design booklet (available here).

Urban plan

This project is situated in Tarwewijk, a neighborhood in Rotterdam South characterized by a high population density, limited green space, and socio-economic challenges. My urban plan seeks to reinforce existing informal care networks and care network nodes by introducing new public, semi-public, and residential spaces.

At its heart lies a multifunctional square that acts as the neighborhood’s largest care node, surrounded by buildings that include communal programs like a neighborhood kitchen, multifunctional spaces, and inclusive housing. Together, these components create a spatial framework that supports informal acts of care.

Inspired by feminist care ethics and spatial justice, the intervention aims to create a city that not only houses, but also shelters, connects, and sustains its residents.

Community kitchen

The community kitchen is the spatial and symbolic heart of the intervention. Rather than functioning as a restaurant or social enterprise, it is conceived as a shared, open space for everyday acts of cooking, eating, and being together. The kitchen enables care through food, not as a commodity, but as a relational act.

Its design prioritizes accessibility and flexibility: multiple entrances make it approachable from different directions, and the interior layout avoids rigid separations between preparation and dining. The multifunctional hall adjacent to the kitchen hosts collective activities such as shared meals, workshops, or informal gatherings.

A defining feature of the building is the wooden colonnade that defines both of its long public edges. It creates a generous transition zone between the interior and the surrounding public space. The use of timber contributes to a warm and welcoming atmosphere, while the rhythm of columns adds structure and clarity to the public realm. The colonnade provides shelter from rain and sun, supports informal lingering, and allows for visual connection without requiring participation. In this way, it fosters low-threshold interaction, an architectural gesture of invitation that reflects the project’s broader ethics of care.

The Light Chimney

I refer to this vertical spatial element as a light chimney. The term draws on the traditional notion of the chimney as a central, symbolic anchor within the home, historically tied to the fireplace and the hearth, where warmth and social life converged. In this design, however, the element no longer channels smoke or fire, but instead becomes a passage for light. It reinterprets the chimney as a spatial and atmospheric core, a luminous centre around which the building is organized. In doing so, it reclaims the symbolic role of the hearth, yet transforms it to reflect contemporary needs for openness, orientation, and presence.

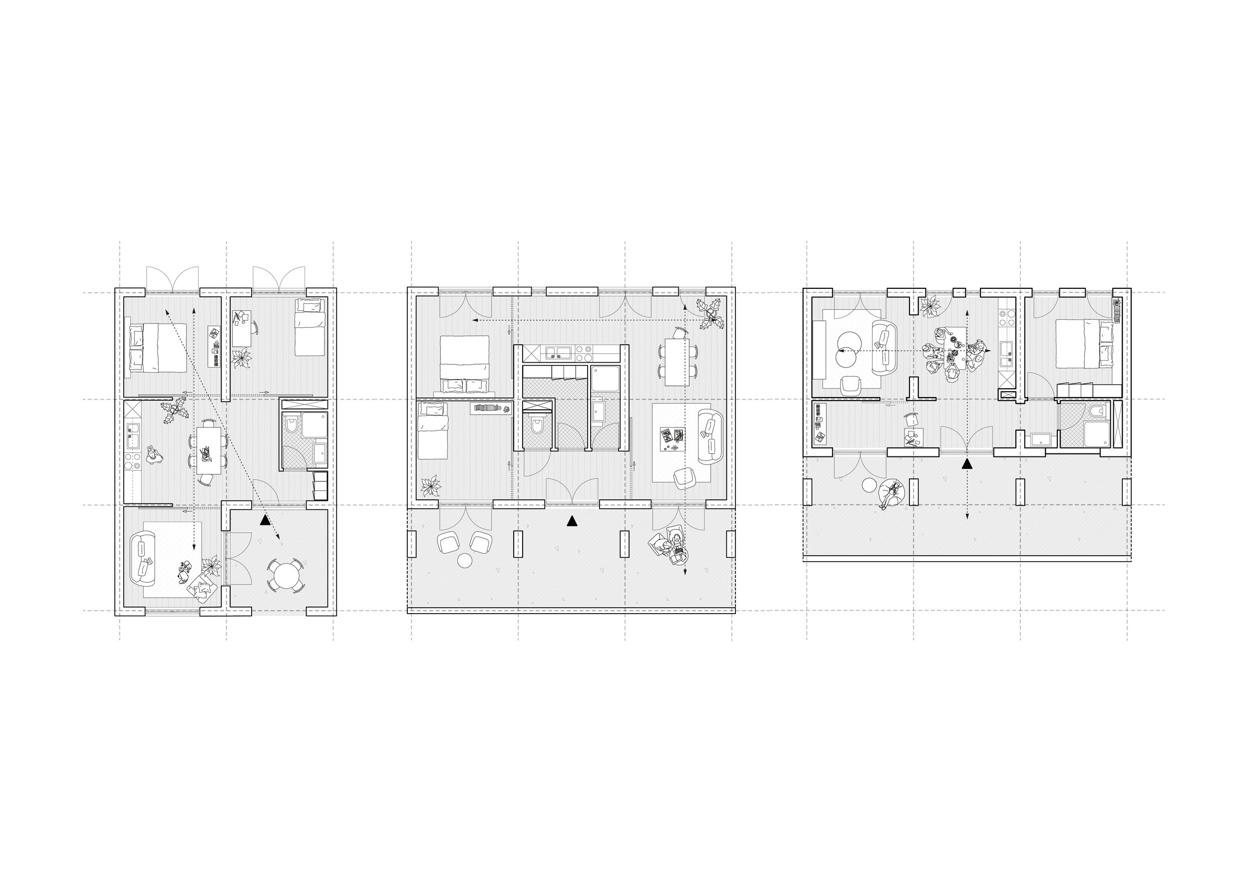
Apartments

The dwellings offer a range of housing typologies that support care at the scale of the home. While my research focused mainly on care in public and semi-public domains, I translated insights from feminist architectural theory and personal experience to shape the domestic environment.

Each unit is organized according to a regular structural grid of 3.6 by 3.6 meters, which generates a series of equally sized rooms throughout the building. This modular rhythm creates clarity and repetition, but also offers flexibility: residents can decide how to inhabit and adapt the spaces according to their own needs and relationships.

The generous gallery-balcony along the façade is also based on this 3.6-meter module, resulting in a depth that is far greater than in conventional housing blocks. This space serves as a social threshold: wide enough to sit, pause, or converse, yet never forcing interaction.

The material palette, timber, soft transitions, and layered thresholds, aims to create an atmosphere of calm, warmth, and openness. By enabling both autonomy and connection, the housing reinforces the project’s central ambition: to create a spatial condition for care.

Next
Next

HydroWall